首頁 > 房屋出售 > 誠昱/西港全新傳統透天厝
第一房屋仲介 - 誠昱/西港全新傳統透天厝

誠昱/西港全新傳統透天厝

透天/別墅      1320萬

系統編號

物件區域
723台南市西港區

物件地址
大竹林

地坪
32.05 坪

總建坪
48.24 坪

室內坪數
48.24 坪

主建物坪
43.62 坪

附屬建物坪數
4.62 坪

車位
車庫    

總樓層
3 樓

位於樓層
1~3 樓

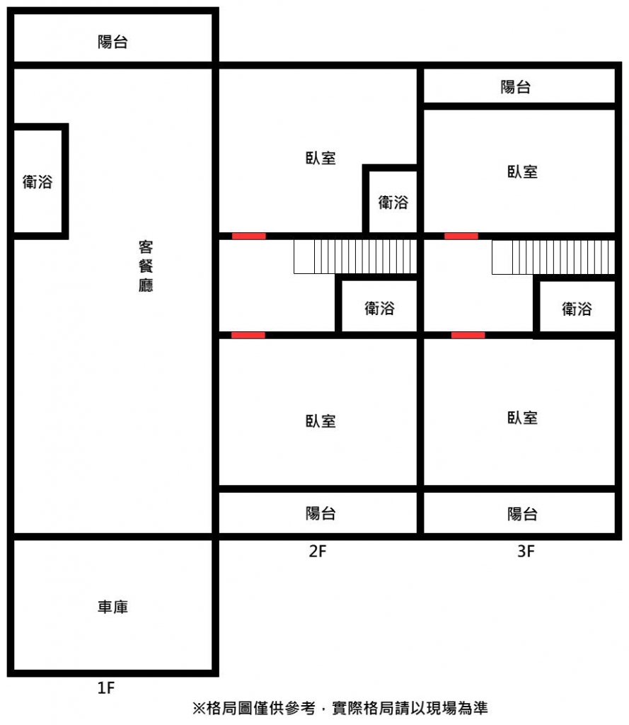
格局
4房2廳4衛4陽台

房屋座向
座西北朝東南

建物結構
鋼筋混凝土(RC)

建築完工
2025年 屋齡約0年

臨路寬度
約6 米路

鄰近市場
傳統市場|全聯

鄰近學區
成功國小|西港國小|港明中學

公園綠地
社區公園

特色說明
1.環境超然,湛藍天空,交通四通八達,涼風吹拂
2.晨昏灑灑水,小弄弄種植樹花草,與大自然為伍
3.鄉村農地,老狗、老地、老友,天南地北好住處
4.配備較完全,雖附近有廟、大排溝濬,不失優雅之處
5.W寬約4.3米*深度21米,臨路6米  

※以上資訊如有記載錯誤,一律依謄本登記簿為準

 - 誠昱/西港全新傳統透天厝
 - 誠昱/西港全新傳統透天厝
 - 誠昱/西港全新傳統透天厝
 - 誠昱/西港全新傳統透天厝
 - 誠昱/西港全新傳統透天厝
 - 誠昱/西港全新傳統透天厝
 - 誠昱/西港全新傳統透天厝
 - 誠昱/西港全新傳統透天厝
 - 誠昱/西港全新傳統透天厝
 - 誠昱/西港全新傳統透天厝
 - 誠昱/西港全新傳統透天厝
 - 誠昱/西港全新傳統透天厝
推薦物件...

誠昱/文賢沐光尊貴豪邸

誠昱/文賢沐光尊貴豪邸
9380 萬

誠昱/新營全新優質雙車墅.

誠昱/新營全新優質雙車墅.
1890 萬

誠昱/歸仁圓環精美3房車.

誠昱/歸仁圓環精美3房車.
888 萬

誠昱/近永大商圈輕屋齡傳.

誠昱/近永大商圈輕屋齡傳.
2298 萬

誠昱/近台積電楠梓車站電.

誠昱/近台積電楠梓車站電.
898 萬

誠昱/新市廠房+乙種工業.

誠昱/新市廠房+乙種工業.
51688 萬

誠昱/鹽水獨家全新超值車.

誠昱/鹽水獨家全新超值車.
1258 萬

誠昱/南應大穩定收租6套.

誠昱/南應大穩定收租6套.
1780 萬


更多..
地圖
分享到臉書